Found in the picturesque village of Lazonby, Penrith, this impressive four-bedroom house is situated in a popular and well-serviced area, making it an ideal choice for those seeking a beautiful location with convenient access to local amenities.
As you approach the home, you will appreciate the ample private parking available, ensuring that you and your guests can come and go with ease. Inside you will find an immaculate interior that has been meticulously maintained, showcasing a range of upgraded fittings. With four large bedrooms across the property was built by a quality local developer and the result is a well designed home that is both spacious and energy efficiency.
In summary, this large four-bedroom home is a rare find, combining modern amenities with the charm of village life. With its immaculate condition, energy-efficient features, and delightful garden, it presents an exceptional opportunity for those looking to settle in a picturesque location.

Property Details
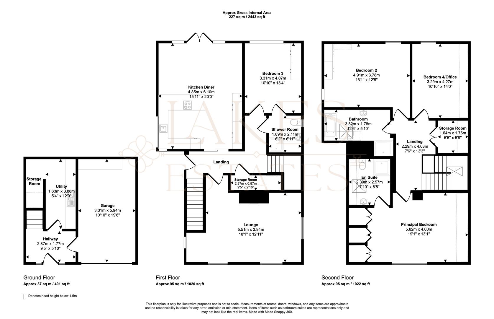
A welcoming landing with storage cupboard leads to the main living spaces. The dining kitchen is a standout feature, with modern integrated appliances, generous workspace, and French doors opening to the rear with countryside views, ideal for both everyday living and entertaining. Opposite, the bright living room benefits from multiple windows and a log burner, creating a warm and inviting space with distant Pennine views. This floor also includes a versatile double bedroom (currently used as an office) with fitted wardrobes and a Jack and Jill en-suite shower room.
6.10 x 4.85 (20'0" x 15'10")
5.54 x 3.94 (18'2" x 12'11")