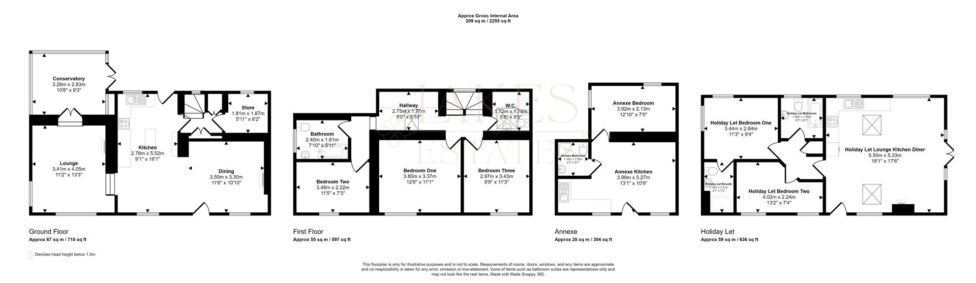
Kitchen
2.78 x 5.52 (9'1" x 18'1")
Well-appointed fitted kitchen featuring granite work surfaces and tiled splashbacks. Equipped with integrated refrigerator, traditional Belfast sink with mixer tap, and freestanding AEG cooker with induction hob and overhead extractor. Central island unit provides additional workspace and storage. Beamed ceiling, radiator, double glazed rear window, latch door to inner hallway and open access to the dining area.
Dining
3.50 x 3.30 (11'5" x 10'9")
There is a spacious dining room featuring a multi-fuel stove set within an inset fireplace complete with oak lintel. Character beamed ceiling, elegant solid oak flooring throughout, and dual sash windows to the front elevation providing excellent natural light. Two radiators ensure year-round comfort, with front access door and steps leading down to the lounge area.
Lounge
3.41 x 4.05 (11'2" x 13'3")
The lounge is a cosy space with multi-fuel stove featuring attractive sandstone hearth and surround. Double glazed windows to both front and side aspects, radiator, and exposed beamed ceiling adding character. Steps provide access up to the conservatory
Conservatory
3.26 x 2.83 (10'8" x 9'3")
The conservatory is a bright space with striking apex ceiling and quality hardwood flooring. French doors open directly onto the rear garden, creating seamless indoor-outdoor living.
Store
1.81 x 1.87 (5'11" x 6'1")
The store is a practical space housing Worcester boiler, washing machine plumbing, and space for fridge freezer. Tile effect flooring and double glazed window complete the room.
Upstairs Hall
2.75 x 1.77 (9'0" x 5'9")
The upstairs hall has a character beamed ceiling with Velux window and radiator. Latch doors provide access to cloakroom and bedrooms, with steps down to additional bedroom and family bathroom.
W.C.
1.72 x 1.76 (5'7" x 5'9")
Compact three-piece suite featuring low level WC, bidet, and pedestal wash basin. Sloping ceiling, radiator, and tile effect flooring.
Bathroom
2.40 x 1.81 (7'10" x 5'11")
Bedroom One
3.80 x 3.37 (12'5" x 11'0")
Bedroom one is a generous double bedroom with sash window to front taking in the surrounding countryside views, radiator, fitted carpet and fitted wardrobes providing excellent storage.
Bedroom Two
3.48 x 2.22 (11'5" x 7'3")
Bedroom two is a well-proportioned bedroom with front-facing sash window, radiator, fitted carpet and loft access.
Bedroom Three
2.97 x 3.43 (9'8" x 11'3")
Bedroom three is a double bedroom with sash window, fitted carpet and radiator.
Outside
The front of the property features a low-maintenance walled garden with adjacent lawned area. Gated access leads to a gravelled driveway with further gated access to Bracken Hill's gardens. The rear offers a low-maintenance garden perfect for outdoor dining, with steps ascending to a lawned side garden featuring mature shrubs, trees, and bushes. Gravelled pathway and steps lead to a patio area and additional gravelled space. Includes storage shed and garage with bi-folding doors, power, and lighting. Log store and oil tank serving both Bracken Hill and Sunny Hill (Holiday Cottage). Parking is available for several vehicles.
Annexe
The annexe is a fantastic addition to the property, with an open plan lounge kitchen area with window and Velux window provide excellent light, radiator, and quality oak flooring. The kitchen has fitted base units with matching worksurfaces and splashbacks, single drainer sink with mixer tap, washing machine plumbing, and space for tumble dryer. Doors provide access to bedroom and shower room. The bedroom is a double bedroom with double glazed window, radiator, and oak flooring. The shower room has a three-piece suite with corner shower cubicle, low level WC, and pedestal wash basin. Towel rail radiator and tile effect flooring. Externally there is a spacious gravelled area to the side providing parking and access to Bracken Hill's garage. The annexe is council tax band A (with a 50% discount available for dependents) and also has scope to become a second holiday let.
Sunny Hill Cottage
Currently marketed as a successful holiday let, Sunny Hill is a beautifully presented two bedroom cottage. There is an impressive open-plan space featuring wood burning stove set within an Inglenook fireplace with stone hearth and oak beam above. Solid wood flooring throughout, double glazed Velux windows, double glazed windows to three elevations, and French doors to the gable end. There is a well-fitted kitchen with timber worksurfaces featuring single drainer sink with mixer tap, electric oven, ceramic hob with extractor hood above, integrated dishwasher and fridge. Double and single radiators, with oak door to inner hallway. The inner hallway has a built-in storage cupboard, solid wood flooring, loft access, single radiator, with doors to bedrooms and bathroom. Bedroom one has double glazed windows to two aspects overlooking the garden, double radiator, loft access, and door to en-suite shower room with a three-piece suite with shower cubicle, low level WC, and wall mounted wash basin. Tiled flooring, recessed halogen downlights, extractor fan, and dual fuel heated towel rail. Bedroom two is a double bedroom with two double glazed front windows and radiator. The main bathroom has a three-piece suite with shower over panelled bath, low level WC, and wall mounted wash basin. Tiled flooring, recessed halogen downlights, dual fuel heated towel rail, extractor fan, and double glazed rear window. Outside there is a south west facing garden with an attractive patio garden with generous lawned area. External Worcester oil-fired boiler provides hot water and central heating. Front parking available. It is currently marketed through Sykes Cottages - https://www.sykescottages.co.uk/cottage/Lake-District-Cumbria-The-Lake-District-Moorside/Sunny-Hill-986584.html?_hsearch=1908135d5295a5836d7&_price=308&_display=1
Services
Mains water, drainage and electricity on all properties. Heating: Bracken Hill and Sunny Hill - Worcester Oil boilers / Annexe heating provided by Calor Gas cannisters.
Please Note
These particulars, whilst believed to be accurate, are set out for guidance only and do not constitute any part of an offer or contract - intending purchasers or tenants should not rely on them as statements or representations of fact but must satisfy themselves by inspection or otherwise as to their accuracy. No person in the employment of Lakes Estates has the authority to make or give any representation or warranty in relation to the property. All mention of appliances / fixtures and fittings in these details have not been tested and therefore cannot be guaranteed to be in working order.